Este site utiliza cookies para permitir a mudança de língua e o armazenamento dos seus imóveis favoritos. Ao utilizar este site, concorda que o mesmo utilize cookies.

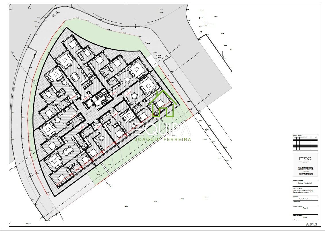
Terreno com projeto aprovado, para construção de 31 Apartamentos em Seroa - Paços de Ferreira

750.000€



Referência

Plano Seroa

Natureza

Venda

Tipo de Imóvel

Terreno

Subtipo de Imóvel

Lote Prédio Habitacional

Tipologia

Não se aplica

Estado

Em Projecto

Certificado energético

Não se aplica


Distrito

Porto

Concelho

Paços Ferreira

Freguesia

Seroa

Código Postal

4595-422


Área Útil

0 m2

Área Bruta

0 m2

Área de Terreno

1250 m2



Contactar Imobiliária

*Preenchimento obrigatório
Ao clicar em 'Enviar', declara que aceita a nossa Política de Privacidade.
Lote de terreno urbano, destinado á construção, localizado no lugar de S. Domingos, na Freguesia de Seroa, Concelho de Paços de Ferreira, Distrito do Porto, com vistas panorâmicas de elevada qualidade, e servida de excelentes acessos.
Lote com projeto de arquitetura aprovado para a construção de 31 apartamentos (T-1; T-1+1; T-2; T-2+1) e lugares de garagens e arrumos, distribuídos por 6 pisos, sendo os primeiros 2 pisos, destinados a garagens e arrumos e os restantes 4 pisos, a habitações.
Lote com todas as infraestruturas realizadas e taxas pagas.
Localiza-se em zona em grande expansão, muito bem localizada, a cerca de 2 minutos do acesso á A42, no Nó de Seroa, a 5 minutos do centro da Cidade de Paços de Ferreira.
Dista cerca de 20 minutos do Porto, Aeroporto e Porto de Matosinhos.
Projeto aprovado, pronto a construir.
Possibilidade de permuta neste negócio.
Geral
VistasMar:Sim
VistasPanorâmicas:Sim
VistasSerra:Sim
Exposição SolarNascente:Sim
Exposição SolarNorte:Sim
Exposição SolarPoente:Sim
Exposição SolarSul:Sim
InfraestruturasConcluídas:Sim
TerrenoResidencial:Sim
AcessosAsfalto:Sim
AcessosUrbano:Sim

Este imóvel não tem áreas definidas.

Imóveis
Semelhantes

Terreno
Venda

440.000€

Terreno urbano c/projeto aprovado para constr...

440.000€

Porto / Paços Ferreira / Freamunde


Ref: 143

Ref: 143

Terreno
Venda

631.000€

Terreno p/construção na Seroa- Paços de Ferre...

631.000€

Porto / Paços Ferreira / Seroa


Ref: 144

Ref: 144

Terreno
Venda

650.000€

Terreno p/construção c/projeto arquitetura ap...

650.000€

Porto / Paços Ferreira / Frazão Arreigada


Ref: Frazão 30

Ref: Frazão 30

Isento